Diese Version (2024/08/29 16:12) wurde bestätigt durch Alexandra Thiel, Gregor Silly.

Benutzerhandbuch

Version 1.0

Beim Aufruf des Programmes erscheint zunächst der Startbildschirm mit allgemeinen Angaben zum Tool, wie z.B. aktuelle Version, Kontaktinformationen und Projektpartner.

Im unteren Bereich des Fensters befindet sich die Auswahl, ob mit der Konfiguration der Standardtypen oder der benutzerdefinierten Eingabe fortgesetzt werden möchte oder ein bestehendes Projekt geöffnet werden soll. Aktuell ist die benutzerdefinierte Eingabe noch nicht aktiviert.

Startbildschirm

Wurde beim Startbildschirm die Option "Standardtypen konfigurieren …" gewählt, wird ein Fenster mit den vordefinierten Grundrissen, den sogenannten Standardtypen gestartet.

Konfiguration der Standardtypen

Im oberen Bereich des Fensters besteht dann die Möglichkeit die Typen nach Größe des benötigten Platzes (Länge in x-Richtung und Länge in y-Richtung), Anzahl der Räume (alles in einem Raum oder aufgeteilt in mehrere Räume) sowie nach vorhandener Ausstattung (mit oder ohne WC, Dusche oder Badewanne) zu filtern. Jeder Filter kann noch separat aktiviert bzw. deaktiviert werden.

Filtermöglichkeiten

Gefilterte Standardtypen

Auf der linken Seite des Fensters sind allgemeine Projekteinstellungen und -optionen angeführt, welche die Mindestabmessungen der Standardtypen beeinflussen.

Allgemeine Projektoptionen

Grundsätzlich ist zu entscheiden, ob die Warmwasserbereitung zentral oder dezentral erfolgt, wieviele Geschoße vorhanden sind (aktuell ist diese Auswahl mit 4 fixiert, von 1-4 gleiche Rohrdimensionen!) und welche Platzbedarfe notwendig sind. Hier wird unterschieden in barrierefrei und anpassbar nach ÖNORM B 1600:2023 und keine Barrierefreiheit mit Platzbedarf nach ÖNORM H 5411:2023.

Anpassbar bedeutet, dass eine Zwischenwand entfernt werden kann und eine Badewanne zu einer Dusche umgebaut werden kann. Andere Umbaumaßnahmen sind aktuell nicht berücksichtigt.

Barrierefreier Grundriss Anpassbarer Grundriss Grundriss mit Platzbedarf nach H5411

Des Weiteren besteht die Möglichkeit eine wassergeführte Heizung (Heizungsschacht, HZ VL, HZ RL, Heizungsverteiler) mitzuplanen sowie bei Grundrissen mit einem separaten Raum fürs WC gibt es die Option eines Handwaschbeckens sowie die Möglichkeit die Schachtbreite hinter dem WC der Raumbreite anzupassen.

Mit Handwaschbecken

Schachtbreite dem WC angepasst Mindestschachtbreite

Im oberen Bereich des Projektfensters befinden sich die Menüleiste und mehrere Buttons. Der Hauptbereich des Fensters besteht aus der interaktiven Zeichenfläche (links), dem Parameterpanel (rechts oben) und der schematischen Darstellung der 3D-Ansichten des BIM Modells (rechts unten).

Projektfenster

Das Menü Datei bietet folgende Möglichkeiten:

  • Neues Projekt erstellen (derzeit noch deaktiviert)
  • Öffnen eines Projektes sowie Anzeige der kürzlich benutzten Dokumente
  • Speichern
  • Exportieren als PDF-Datei
  • Programm beenden

Datei

Im Menü Bearbeiten können Projektinformationen eingegeben, sowie die Einstellungen verändert werden.

Bearbeiten

Im Menü Hilfe kann das Benutzerhandbuch aufgerufen werden. Zudem können Informationen über das Programm angezeigt werden.

Hilfe

Selektieren, Spiegeln, Verschieben

Von links nach rechts:

  • Selektieren: aktuell können nur die Sanitärgegenstände, Türen und der Wendekreis selektiert werden. Um mehrere Objekte zu selektieren, muss die SHIFT Taste gehalten werden.
  • Spiegeln: Sanitärgegenstände und Türen können entlang der Wand gespiegelt werden
  • Verschieben in nach links, rechts, oben, unten: Sanitärgegenstände und Türen können entlang der Wand verschoben werden; der Wendekreis frei im Raum. Die eingestellte Schrittweite beträgt 5 cm bzw. bei gedrückter SHIFT-Taste 1 mm.

Anordnung entlang einer Wand, Verteilung entlang einer Wand, Wendekreis, Mindestwandlänge für selektierte Sanitärgegenstände, Schachtanbindung

Von links nach rechts:

  • ausrichten: Anordnen von selektierten Sanitärgegenständen (in der Reihenfolge, wie sie selektiert wurden) an einer Wand von links nach rechts. Bei gleichzeitigem Drücken der SHIFT-Taste werden die Objekte dann noch an das Ende der Wand geschoben. Wird gleichzeitig die CTRL-Taste gedrückt gehalten, wird der erste bzw. letzte Sanitärgegenstand nicht verschoben.
  • verteilen: Verteilen von Sanitärgegenständen entlang einer Wand
  • TC: Auffinden einer gültigen Position des Wendekreises
  • min L: gibt die Mindestlänge einer Wand für die selektierten Objekte aus
  • W2S: Visualisierung der Anbindung der benötigten Anschlüssen eines Sanitärgegenstandes an Schächte bzw. Versorgungsstellen

Leitdetails Link zu den Leitdetails Abdichtung auf Rohbauebene

Von links nach rechts:

  • PDF: Export in eine pdf-Datei (siehe auch Menü "Datei | PDF exportieren")
  • CSV: Export in eine csv-Datei, die mittels des Dynamo-Scripts weiterverarbeitet werden kann (siehe Workflow)
  • RVT Min: Durch Drücken dieses Buttons, wird das BIM-Modell des jeweiligen Standardtyps als Autodesk Revit Datei (Version 2022) heruntergeladen. Den Modellen liegen die Mindestabmessungen für eine barrierefrei adaptierbare Planung zugrunde. Sämtliche BIM Modelle wurden inkl. wasserführender Heizung modelliert.
  • RVT Arch: Durch Drücken dieses Buttons, wird die Autodesk Revit Datei (Version 2022) heruntergeladen, die als Vorlage Datei für die automatisierte Erstellung der BIM Architekturmodelle via Revit/Dynamo (siehe Workflow) benötigt wird.
  • RVT TGA: Durch Drücken dieses Buttons, wird die Autodesk Revit Datei (Version 2022) heruntergeladen, die als Vorlage Datei für die automatisierte Erstellung des BIM Gebäudetechnikmodells (TGA) via Revit/Dynamo (siehe Workflow) benötigt wird.
  • IFC Min: Durch Drücken dieses Buttons wird, falls vorhanden, die IFC-Datei des jeweiligen Typs in Mindestabmessungen (barrierefrei adaptierbare Planung) heruntergeladen
  • Dynamo Arch: Durch Drücken dieses Buttons, kann das Autodesk Dynamo Script zur automatisierten BIM Architektur Modellerstellung (siehe Workflow) heruntergeladen werden.
  • Dynamo TGA: Durch Drücken dieses Buttons, kann das Autodesk Dynamo Script zur automatisierten BIM TGA Modellerstellung (siehe Workflow) heruntergeladen werden. Dieses Script ist nur für eingeschränkte Typen verfügbar.

Standardtypen Öffnet den Konfigurator der Standardtypologien

Konflikte Sollten Konflikte vorliegen, kann mit diesem Button das Fenster mit den vorliegenden Fehlern und Warnungen angezeigt werden. Siehe auch Visualisierung der Konflikte in der Zeichenfläche.

Fenster mit vorliegenden Konflikten

Infos Mit diesem Button bekommt man Informationen über die benötigte Fläche und die Wohnfläche.

Fenster mit Flächeninfos

Info, Benutzerhandbuch und Background Der linke Button ruft das Info-Fenster, der mittlere das Benutzerhandbuch und der rechte die Background-Informationen auf.

Verfügbare Sprachen (DE | EN) Über diese Buttons kann die Sprache (Deutsch oder Englisch) verändert werden. In der derzeit vorliegenden Version ist nur Deutsch verfügbar.

In der Zeichenfläche wird der Grundriss des Projektes dargestellt.

Sanitärgegenstände und Türen können durch einen Mausklick auf das Objekt selektiert und entlang der Wand durch Drücken der CTRL-Taste und ziehen der Maus in die jeweilige Richtung verschoben werden.

Die Anpassungsmöglichkeiten an die reale Situation bestehen hinsichtlich:

  • Warmwasserbereitung (zentral, dezentral)
  • Barrierefreiheit bzw. andere zugrundeliegende Normen für Platzbedarfe
  • Raumgrößen und Wandstärken
  • Größe von Schächten und Vorsatzschalen
  • Positionen von Sanitärgegenständen (über interaktive Zeichenfläche)
  • Türposition sowie Anschlagrichtung (über interaktive Zeichenfläche)

Veränderbare Parameter der ausgewählten Standardtypologie

Bei jeder Änderung erfolgt eine regelbasierte Überprüfung ob die Platzbedarfe und Mindestgrößen eingehalten und alle erforderlichen Anschlüsse vorhanden sind. Sollte dies nicht der Fall sein, werden Fehlermeldungen/Warnhinweise angezeigt sowie die betroffenen Objekte markiert.

Grundriss mit Fehlermeldungen und Warnhinweisen

Im rechten unteren Bereich des Projektfensters werden die 3D-Ansichten der BIM Modelle des jeweiligen Badezimmertyps dargestellt. Die Ansichten sind nicht dynamisch – d.h. sie ändern sich nicht aufgrund der Konfiguration, sondern stellen die jeweilige Mindestabmessung des Badezimmertyps dar. Es ist die Mindestabmessung für eine barrierefrei adaptierbare Planung dargestellt.

Mit einem Mausklick auf die Fläche mit den 3D-Ansichten wird ein Fenster geöffnet, in dem man dann auch die Bilder zoomen kann. Über die Dropdown-Auswahl kann die jeweilige Ansicht ausgewählt werden und mit + und - kann das Bild vergrößert bzw. verkleinert werden.

3D-Ansicht des BIM-Modells

Im Info-Fenster findet man u.a. die Kontaktadresse, sowie die Möglichkeit die Nutzungsbedingungen anzuzeigen und einen „Feedback-Button“.

Info-Fenster

Über das Menü „Bearbeiten | Projektinfo“ gelangt man zur Eingabe der Projektinformationen. Hier können Projektnummer und Projektname vergeben, sowie eine Beschreibung der betrachteten Räume vorgenommen werden. Des Weiteren kann ein Bearbeiter eingetragen werden. Erstellungs- und Änderungsdatum des Projektes, sowie der Speicherort werden automatisch gesetzt.

Projektinformationen

Der grundsätzliche Ablauf ist wie folgt:

  • CLT_Plumbing_Designer: Grundriss und Ausstattung planen
  • CLT_Plumbing_Designer: Export einer CSV-Datei (siehe CSV-Button)
  • CLT_Plumbing_Designer: Download DYNAMO-Skript (siehe Dynamo Arch-Button oder Dynamo TGA-Button)
  • CLT_Plumbing_Designer: Download Autodesk® Revit® BIM-Modell des zugehörigen Standard-Badezimmertyps (siehe RVT Arch-Button oder RVT TGA-Button) 1)
  • Autodesk® Revit®: Öffnen des heruntergeladenen BIM-Modells
  • DYNAMO: Skript öffnen und exportierte CSV-Datei laden
  • DYNAMO: Skript ausführen → Autodesk® Revit® BIM-Modell der im CLT_Plumbing_Designer geplanten Variante

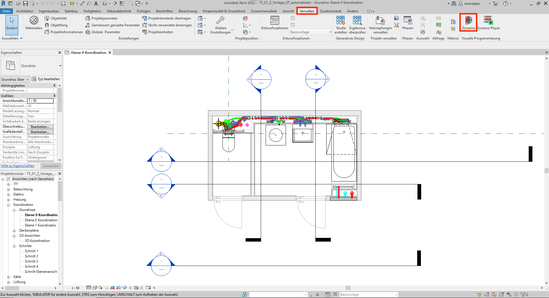
BIM-Modell in Autodesk® Revit® öffnen und Dynamo über Registerkarte "Verwalten" aufrufen

BIM-Modell in Autodesk® Revit® geöffnet

Im Dynamo-Fenster heruntergeladenes Skript öffnen

Öfnnen des heruntergeladenen Skripts

Ansicht geöffnetes Skript

Geöffnetes Skript

Einlesen der csv-Datei durch Klick auf das Startobjekt "csv Pfad" und anschließendes Ausführen des Skripts durch Klick auf "Ausführen"

Startobjekt "csv Pfad"


1)
Mit dem Umweg über das Autodesk® Revit® BIM-Modell des Standardtyps kann gewährleistet werden, dass die verwendeten herstellerspezifischen Komponentenfamilien (z. B. für Rohre, Formteile, Absperreinrichtungen, Sanitär-Montageelemente, Sanitärgegenstände) bereits vorhanden sind und nicht erst vom User/der Userin heruntergeladen werden müssen.
  • clt/special/building_services/plumbing_design/plumbing_designer/manual.txt
  • Zuletzt geändert: 2024/08/29 14:22
  • von Alexandra Thiel